您好,欢迎进入河南省中原樱桃视频影院在线播放实业有限公司官方网站!

与时俱进,诚赢客户

樱桃视频官网、提梁机、门式樱桃视频色版机生产厂家

服务电话:13782575673

技术资料

您现在所在位置:首页>>技术资料>>32吨电动式单梁樱桃视频色版机性能参数

32吨电动式单梁樱桃视频色版机性能参数

本文链接:http://www.3ggnwf.com/jszc/1395.html   发布时间:2022-01-24 11:26:43  点击量:1888

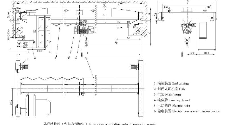
  32吨电动式单梁樱桃视频色版机就是指额定值吊重为32吨的LD型电动式单梁樱桃视频色版机。该吨数的单梁樱桃视频色版机在现实制造中运用较少,我为各位共享下32吨电动式单梁樱桃视频色版机性能参数。

  32吨电动式单梁樱桃视频色版机结构图

32吨电动式单梁樱桃视频色版机性能参数

  32吨电动式单梁樱桃视频色版机参数图

32吨电动式单梁樱桃视频色版机性能参数

文章聚合页面: 32吨 樱桃视频色版机参数

技术资料

联系樱桃视频影院在线播放

CONTACT US

联系人:徐经理

手机:13782575673

电话:0373-8611375

邮箱:hnzyaqqz@126.com

官网:www.3ggnwf.com

地址:河南长垣樱桃视频色版工业园区华豫大道中段

网站地图